The Perfect Blend of Comfort and Character
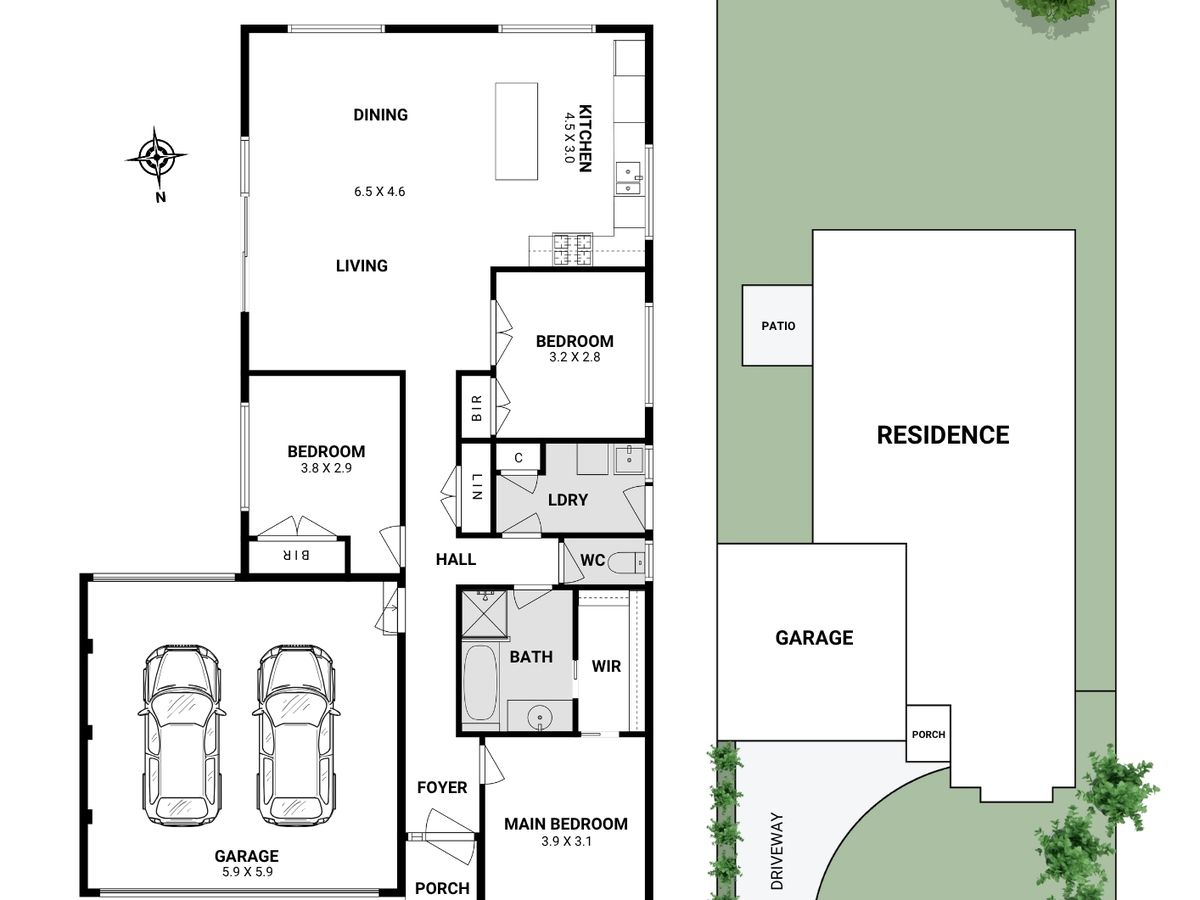
- 3 Bedrooms
- 1 Bathrooms
- 2 Car spaces
- 442 sq metres
Description
Perfectly positioned in a quiet, family-friendly pocket, this neat and inviting three-bedroom home offers comfort, convenience, and a smart investment opportunity.
The home features three generous bedrooms, each with built-in robes, a central bathroom with a separate toilet, and a spacious open-plan living and dining area filled with natural light. The well-appointed kitchen provides plenty of storage and overlooks the living space, creating a warm and practical hub for everyday family life. A double garage with internal access and Outside, the backyard is spacious and mostly grass, perfect for kids or pets, with room to enjoy the outdoors.
Located in one of Tarneit’s most sought-after areas, this home is close to local schools, parks, shops, and public transport, ensuring everything you need is within easy reach. Currently leased until March 2026 at $440 per week, it offers immediate rental income and solid long-term potential.
Whether you’re looking for your first home, downsizing, or adding to your investment portfolio, this property represents an excellent opportunity in a great location.
Contact us today to arrange your private viewing.

